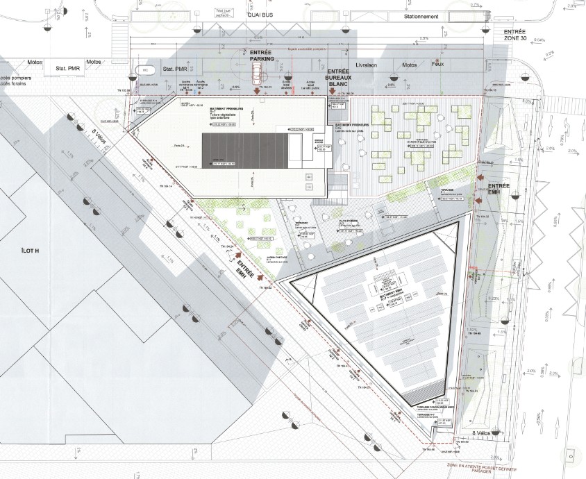
La situation stratégique de l’îlot G lui confère un véritable rôle de charnière entre les différents quartiers qui constituent la ZAC Villeurbanne La Soie. L’îlot G assurera la transition entre le tissu pavillonnaire, l’habitat collectif, les zones tertiaires. L’ilot s’organise autour de 2 bâtiments posés sur un socle de commerces qui encourage les échanges, inviter aux rencontres, faciliter la communication, afin de répondre aux nouvelles attentes et aux nouveaux usages de travail. Ainsi, le hall d’entrée s’ouvre comme une transition douce entre les deux rues et offre un véritable lieu d’échange.
L'îlot G, situé stratégiquement, assure la transition avec des bâtiments autour d'un socle de commerces pour encourager les échanges et répondre aux nouveaux usages de travail.


Surface : 12 995 m² SDP de bureaux et 1 000 m² SDP de commerces
Livraison : 2023
Stade : Livré
Localisation stratégique
Plan de situation

Accessibilité
Pôle multimodal Vaulx-en-Velin la Soie
100 m
Gare Lyon Part-Dieu
6 km
20 minutes en tram
Gare Lyon Perrache
20,5 km
20 minutes en métro
Route RN 383
8 km
13 minutes en voiture
Aéroport de Lyon-Saint Exupéry
25,7km
20 minutes en voiture
Plan de masse
