Le projet Alsace à Lyon est un ensemble immobilier moderne et élégant, conçu pour offrir un confort d'usage optimal à ses résidents. Le travail sur les volumes permet d'obtenir de généreuses terrasses, idéales pour profiter de la vue sur le quartier environnant. Le projet est pleinement intégré au sein de ce dernier, ce qui en fait un endroit agréable à vivre. Les plans de niveau sont intelligemment conçus pour maximiser l'espace disponible, tandis que les aménagements intérieurs sont adaptés aux divers usages des résidents.
Design moderne avec volumes accueillants, terrasses spacieuses, environnement calme et connecté, idéalement situé à l'intersection de quartiers dynamiques.


Surface : 3 930 m² SU de bureaux et 940 m² SU d’ERP 5ème catégorie
Livraison : T2 2027
Stade : En phase de lancement commercial
Ce bien vous intéresse ?
Plan de situation

Accessibilité
Métro A
Arrêt République
10 minutes à pied
Métro B
Arrêt Brotteaux
10 minutes à pied
Gare Part-Dieu
1,5km
15 minutes à pied
Aéroport Lyon-Saint Exupéry
27 km
40 minutes en voiture
Périphérique
5km
Confort d'usage optimal
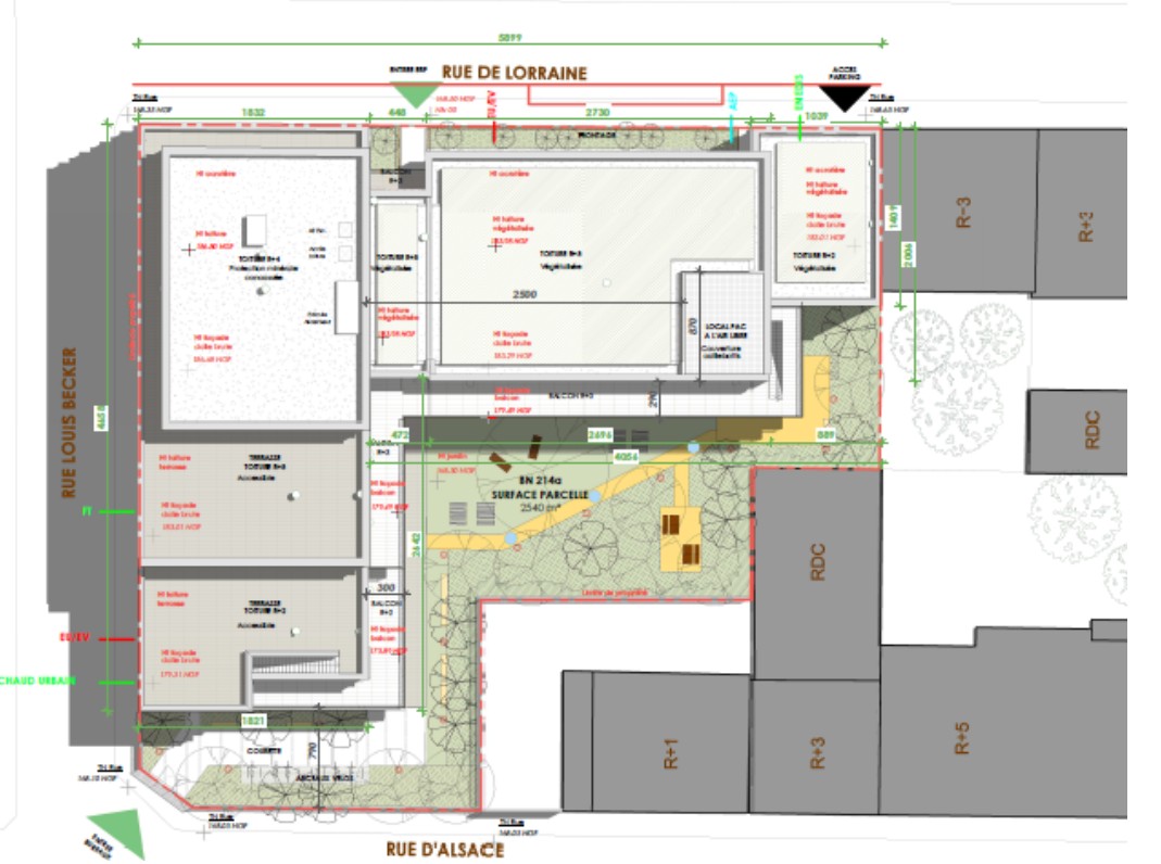
Plan de masse
